...

Milestone

Milestone

Five years.  That’s how long ago we purchased the property for Reverie Retreat.  If you had told us in 2012 how complicated it would be, and how long it would take, we most likely wouldn’t have done it.  It’s probably best that we didn’t know.

And yet, here we are, five years later, and things are finally moving forward.  I’m excited to report that our designer (Jenny Levitsky – Ultimate Designs) has completed initial designs for the buildings, with enough detail to be able to put everything out to bid.  This will give us solid budget numbers so that we can go to a lender for financing.  Still too soon to put any kind of timeline on our opening date, but this is a big step closer!

For you geeks out there who love blueprints, here is the overall site plan. If you want to get a closer look, click on each image and it will enlarge.

 

 

 

 

As your eye progresses from right to left on the plan, picture yourself walking down the driveway, past the two cars on the left.  The first building you come to on the left is an ADA cabin with an ADA parking space adjacent to it. The next building on the left is the existing guest cottage, then you come to the commercial kitchen building that includes restrooms (both guest and staff), laundry facility and janitor room.  The last large building on the left is the 1800 sq. ft. main hall. Across the road from the gathering space is an outdoor dining pavilion with a small outdoor kitchen and another ADA bathroom. The cabins are the small buildings scattered about further to the left on the plans (as you walk down the hill).  There are three small buildings with toilets, sinks, and showers located in the middle of all of the cabins.

Here is  a blueprint of the main hall, followed by several elevation drawings from different views and a rendering:

 

 

 

 

 

 

 

 

 

 

 

 

 

 

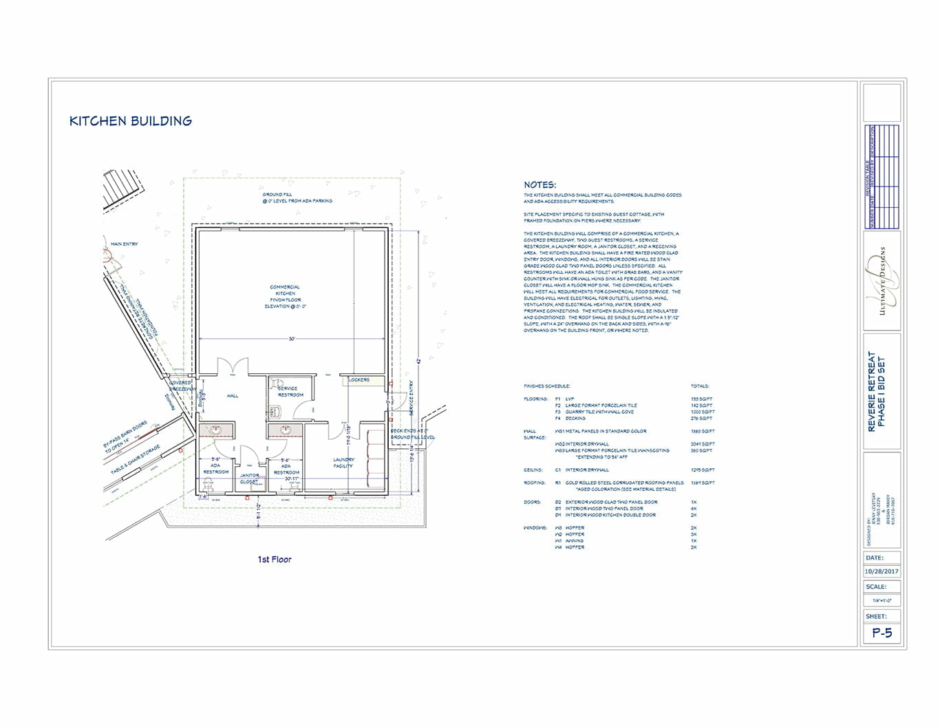
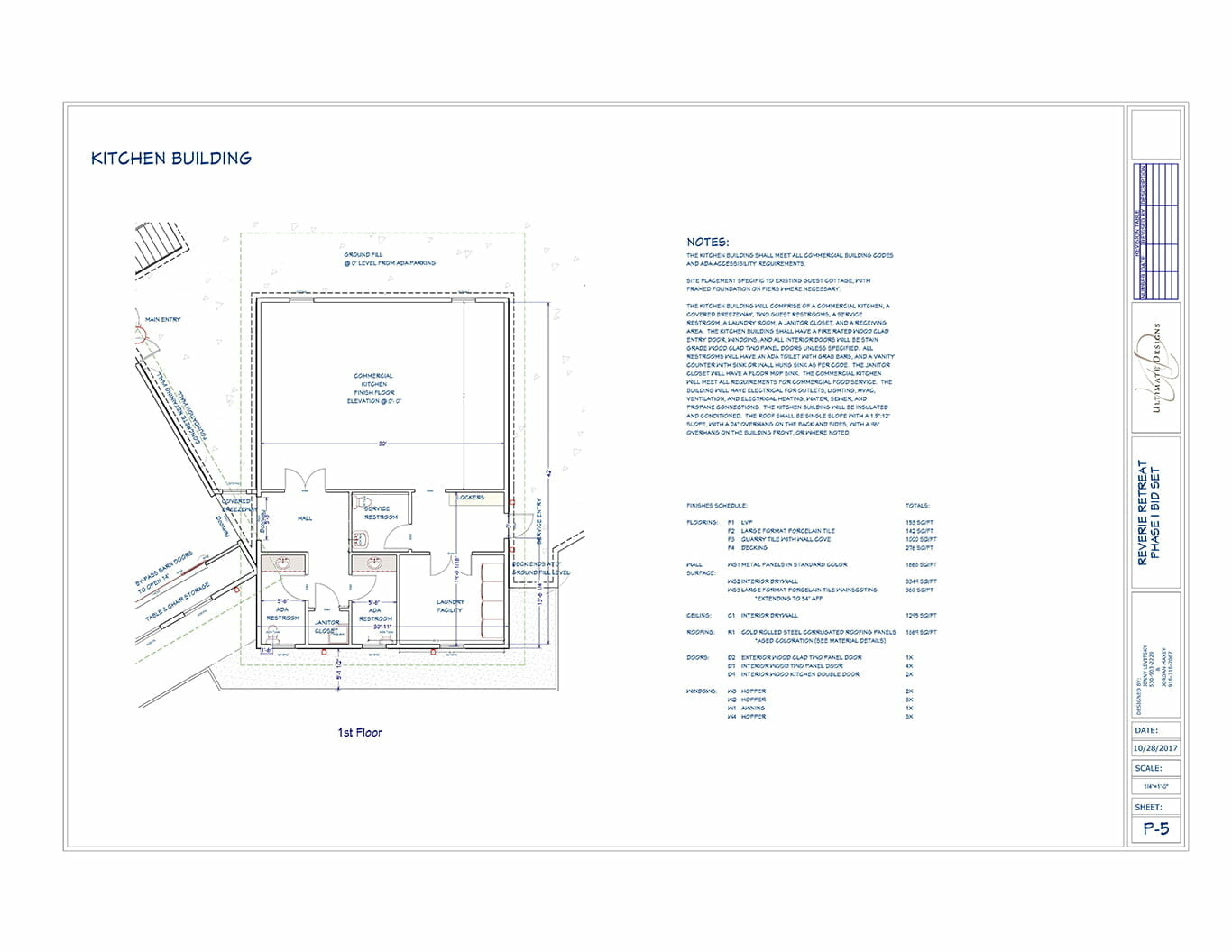
This is the commercial kitchen/laundry/restroom building:

 

 

 

 

 

 

 

And the cabins:

 

 

 

 

 

 

 

The communal bathrooms are located in the area with the cabins:

 

 

 

 

 

 

 

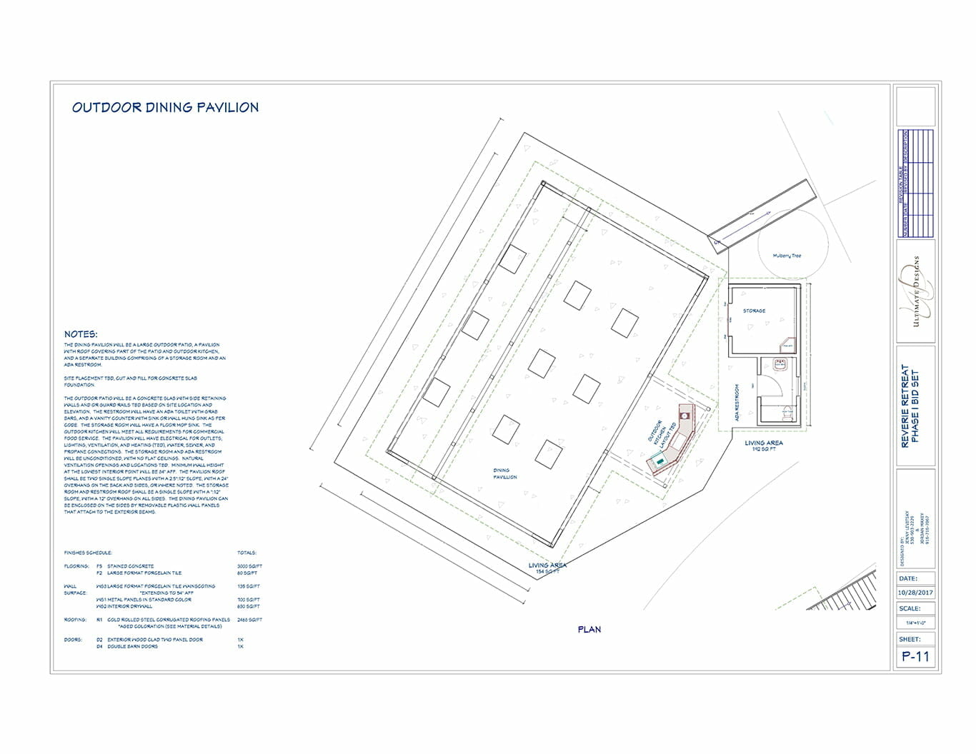
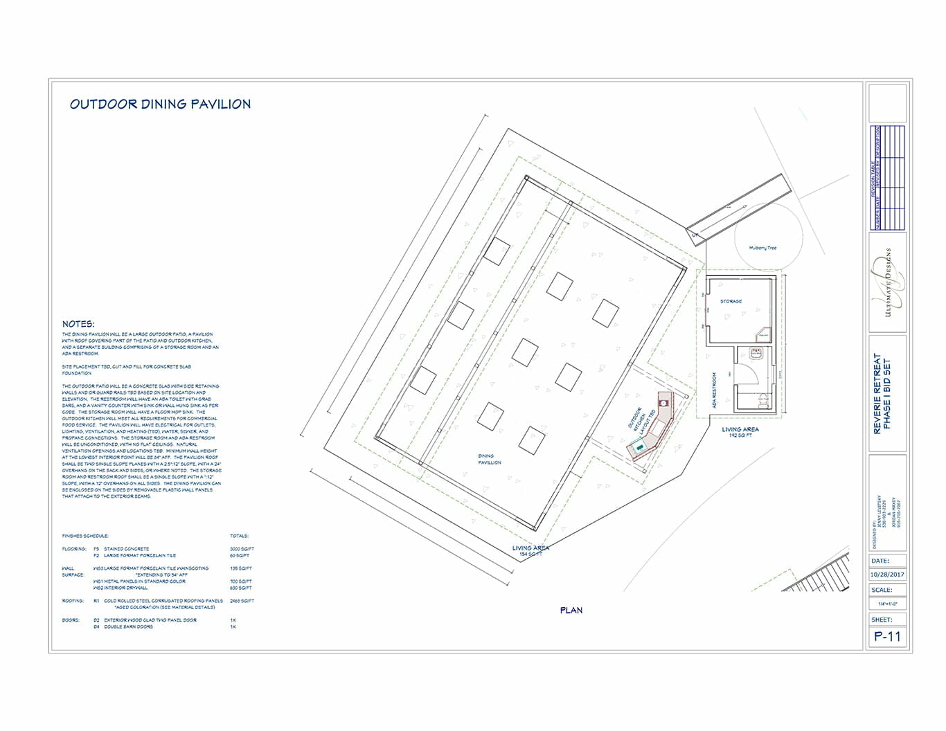
And finally, the outdoor dining pavilion with outdoor kitchen and ADA restroom:

 

 

 

 

 

 

 

Once open, our permit for Phase 1 allows Reverie Retreat to host up to 40 guests overnight, with accommodation options that include tent camping, tent cabins, small permanent cabins with communal bathrooms, and two cabins with ensuite bathrooms (one ADA).

I’m so encouraged that we have reached this milestone in our project development.  The next big hurdle (once we get the contractor bids in) will be convincing a lender that our project is a good prospect for a loan.  Just don’t go back in time and tell me all it took to get this point.  That would scuttle the whole thing.

Share this:

Leave a Comment

Your email address will not be published. Required fields are marked *

Seraphinite AcceleratorOptimized by Seraphinite Accelerator
Turns on site high speed to be attractive for people and search engines.